近期,本局收到新田镇麻地经济联合社办理临时建设工程规划许可的申请及有关材料。依照《广东省城乡规划条例》第二十九条的有关规定,现对相关事项公示如下:
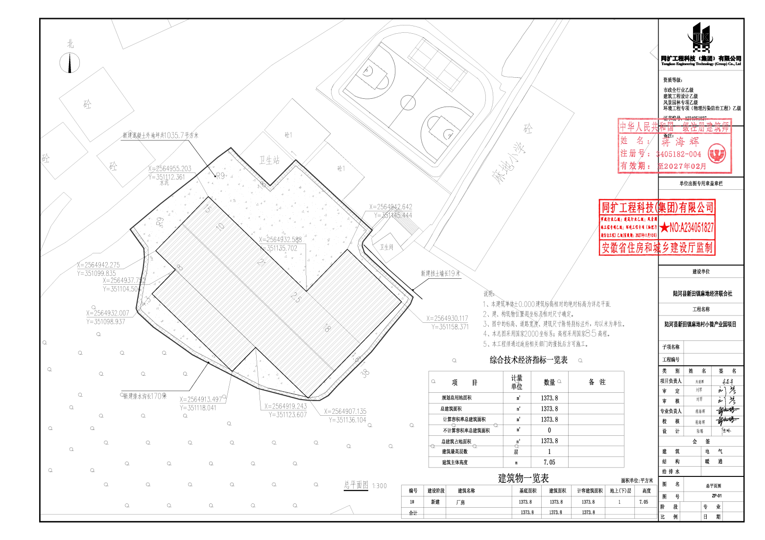
项目名称:陆河县新田镇麻地村小微产业园项目
建设位置:陆河县新田镇麻地村
建设规模:总建筑面积1373.8平方米
公示时间:2025年11月13日至2025年11月22日
新田镇麻地经济联合社申请建设工程规划许可证的具体内容,可到我局咨询。相关利益人如果对该工程规划许可有异议,可在公示之日起十日内依照有关规定向我局提出书面申述,反馈意见请署真实姓名及联系方式,否则不予以受理,逾期未提出的,视为放弃上述权利,我局将按照相关程序给予办理。
特此公示。
附:规划设计总平面图

联系电话:0660—5663655
陆河县自然资源局
2025年11月12日