近期,本局收到汕尾比亚迪汽车有限公司办理建设工程规划许可变更的申请及有关材料。依照《广东省城乡规划条例》第二十九条的有关规定,现对相关事项公示如下:
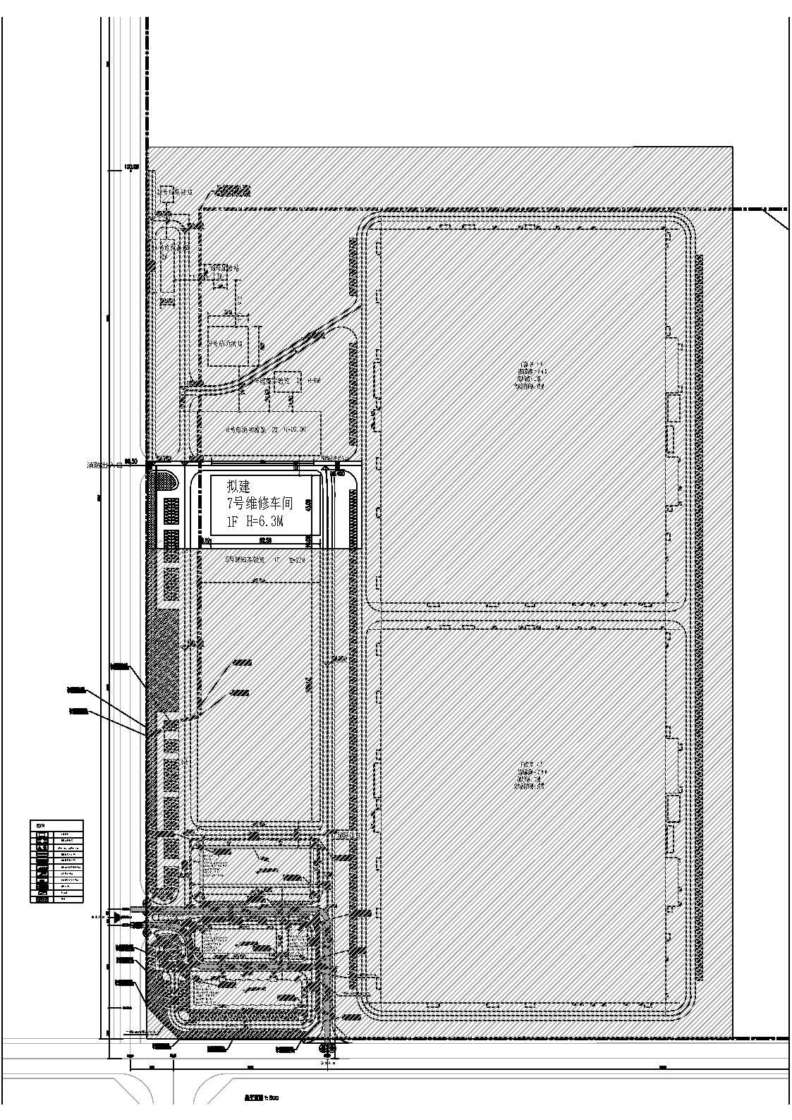
变更前项目名称:比亚迪规划院汽车研发(汕尾)试验基地(7号维修车间)
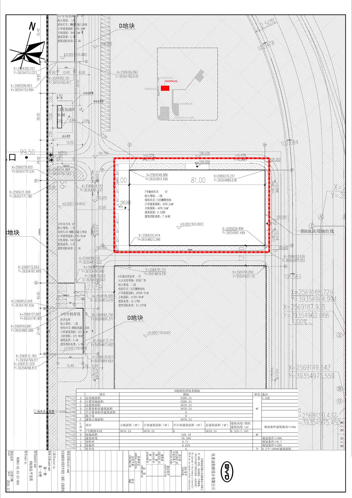
变更后项目名称:比亚迪新技术院汽车研发(汕尾)试验基地(二期)
项目代码:2309-441523-04-01-757399
建设位置:陆河县产业转移工业园区
变更内容:维修车间长度由82.5米调整为81.2米,宽度由45米调整为45.2米,建筑面积由3712㎡调整为3670.24㎡。
公示时间:2025年1月4日至2025年1月13日
汕尾比亚迪汽车有限公司申请变更建设工程规划许可证的具体内容,可到我局咨询。相关利益人如果对该工程规划许可变更内容有异议,可在公示之日起十日内依照有关规定向我局提出书面申述,反馈意见请署真实姓名及联系方式,否则不予以受理,逾期未提出的,视为放弃上述权利,我局将按照相关程序给予办理。
特此公示。
附:1.变更前规划设计总平面图
2.变更后规划设计总平面图


联系电话:0660—5663655
陆河县自然资源局
2025年1月3日