近期,本局收到陆河县上护镇人民政府办理建设工程规划许可的申请及有关材料。依照《广东省城乡规划条例》第二十九条的有关规定,现对相关事项公示如下:
建设单位:陆河县上护镇人民政府
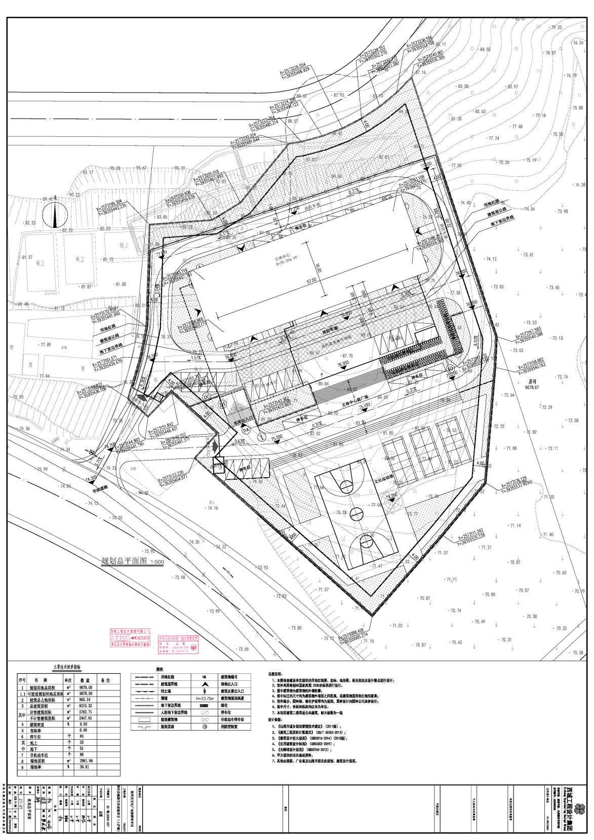
项目名称:陆河县镇级文体设施项目(上护镇)
项目代码:2020-441523-88-01-009362
建设位置:陆河县上护镇护二村
建设规模:总建筑面积8210.32平方米,计容建筑面积5762.71平方米,其中文体中心地上6层、地下1层,配套设施等,建筑高度不超过30米。
公示内容:规划总平面图(见附图)
公示时间:2024年11月30日至2024年12月9日
附图为示意图,关于项目图纸等具体内容,可到我局咨询。相关利益人如果对该工程规划许可有异议,可在公示之日起10日内,依照有关规定向我局提出书面申述,反馈意见请署真实姓名及联系方式,否则不予以受理,逾期未提出的,视为放弃上述权利,我局将按照相关程序给予办理。
特此公示。
附图:规划总平面图

联系电话:0660—5663655
陆河县自然资源局
2024年11月29日