近期,本局收到陆河县螺溪中学办理建设工程规划许可的申请及有关材料。依照《广东省城乡规划条例》第二十九条的有关规定,现对相关事项公示如下:
建设单位:陆河县螺溪中学
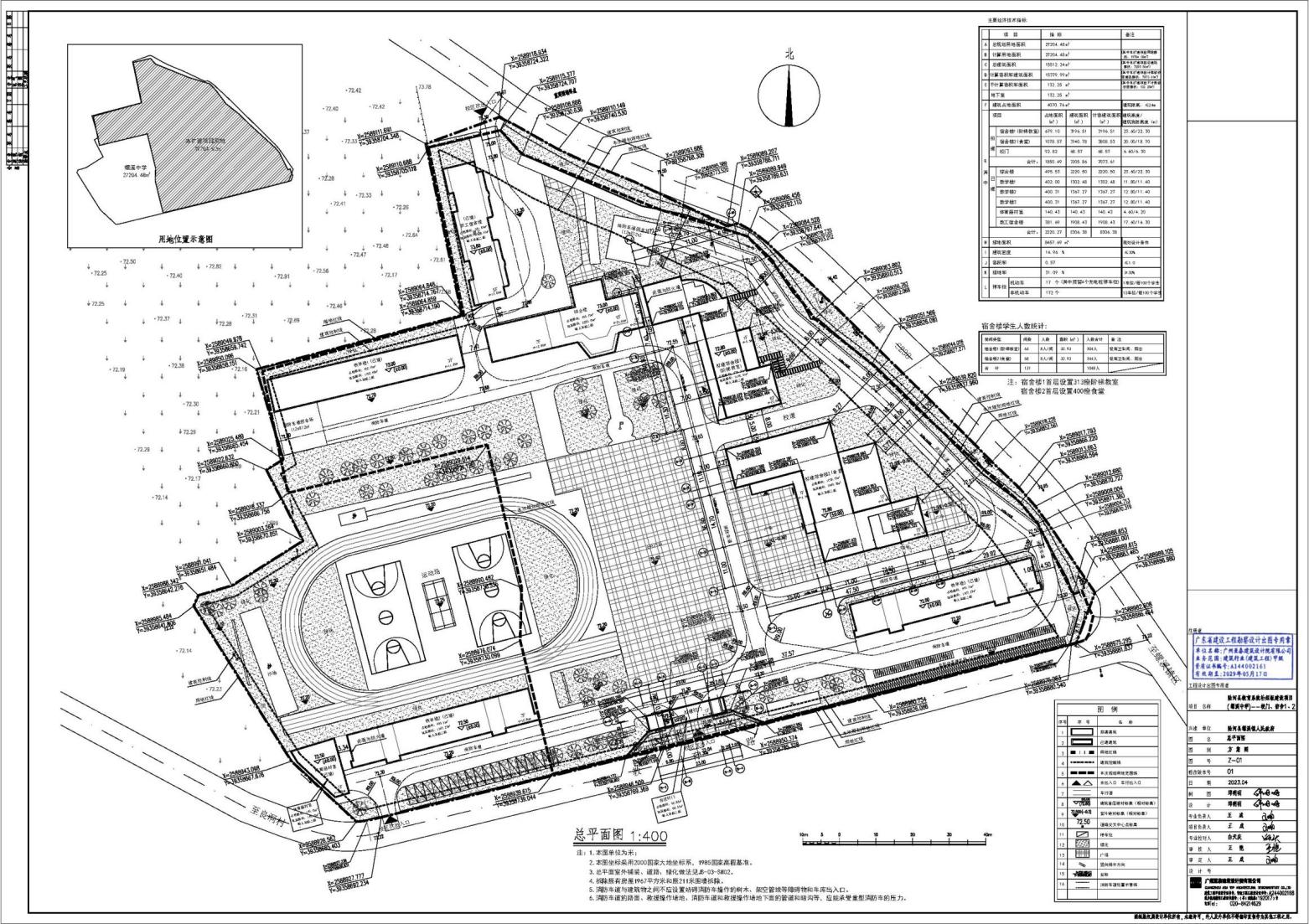
项目名称:陆河县教育系统补短板建设项目(螺溪中学)一期
项目代码:2210-441523-05-01-146107
建设位置:陆河县螺溪镇新良村
建设规模:总建筑面积7205.86平方米,计容建筑面积7073.61平方米,其中宿舍楼1地上6层,宿舍楼2地上5层、地下1层,配套设施等,建筑高度不超过24米。
公示内容:规划总平面图(见附图)
公示时间:2024年11月12日至2024年11月21日
附图为示意图,关于项目图纸等具体内容,可到我局咨询。相关利益人如果对该工程规划许可有异议,可在公示之日起10日内,依照有关规定向我局提出书面申述,反馈意见请署真实姓名及联系方式,否则不予以受理,逾期未提出的,视为放弃上述权利,我局将按照相关程序给予办理。
特此公示。
附图:规划总平面图

陆河县自然资源局
2024年11月11日