近期,本局收到汕尾比亚迪汽车有限公司办理建设工程规划许可的申请及有关材料。依照《广东省城乡规划条例》第二十九条的有关规定,现对相关事项公示如下:
建设单位:汕尾比亚迪汽车有限公司
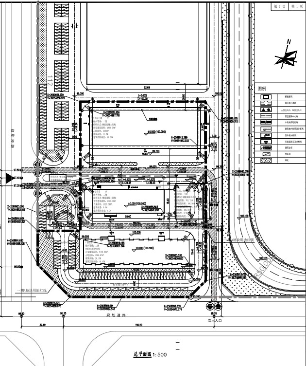
项目名称:比亚迪规划院汽车研发(汕尾)试验基地(一期)
项目代码:2309-441523-04-01-757399
建设位置:陆河县河口镇新河工业园区
建设规模:总建筑面积:15685.52平方米,计容面积:15089.36平方米,不计容面积:596.16平方米。其中1号宿舍地上6层,2号食堂地上1层,3号办公楼地上2层,4号生活、消防水池地上1层、地下1层,配套设施等,建筑高度不超过40米。
公示内容:规划总平面图(见附图)
公示时间:2024年2月23日至2024年3月3日
附图为示意图,关于项目图纸等具体内容,可到我局咨询。相关利益人如果对该工程规划许可有异议,可在公示之日起10日内,依照有关规定向我局提出书面申述,反馈意见请署真实姓名及联系方式,否则不予以受理,逾期未提出的,视为放弃上述权利,我局将按照相关程序给予办理。
特此公示。
附图:规划总平面图

联系电话:0660—5663655
陆河县自然资源局
2024年2月22日