政府信息公开
11441523MB2C95307Q/2023-00621
陆河县自然资源局
2023-11-08
林润时代有限公司(临时建筑)建设工程规划许可批前公示
2023-11-09

林润时代有限公司(临时建筑)建设工程规划许可批前公示

发布日期:2023-11-09  浏览次数:-


建设工程规划许可批前公示

   近期,本局收到广东省林润时代城有限公司办理临时建设工程规划许可的申请及有关材料。依照《广东省城乡规划条例》第二十九条的有关规定,现对相关事项公示如下:

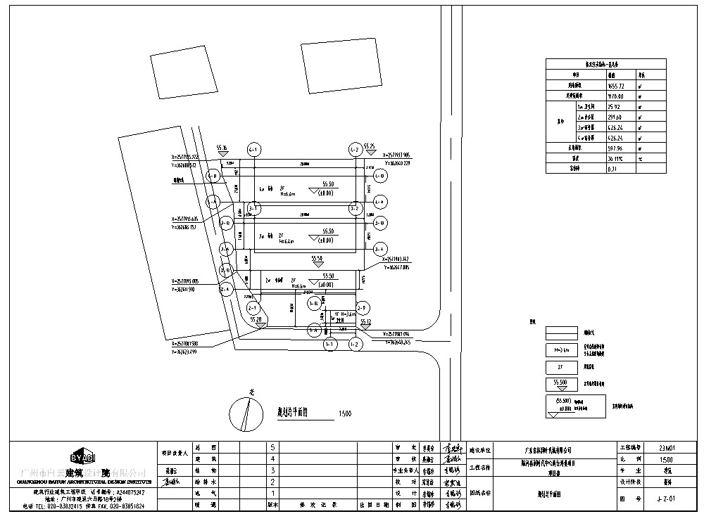
项目名称:陆河林润时代中心商住建设项目部

建设位置:陆河县河田镇埔顶村

结构形式:钢架结构

建设规模总建筑面积1170平方米其中1#卫生间、2#办公楼、3#宿舍楼、4#宿舍楼、配套设施等

公示内容:规划总平面图(见附图)

公示时间:2023119日至20231118

附图为示意图,关于项目图纸等具体内容,可到我局咨询。相关利益人如果对该工程规划许可有异议,可在公示之日起10日内依照有关规定向我局提出书面申述,反馈意见请署真实姓名及联系方式,否则不予以受理,逾期未提出的,视为放弃上述权利,我局将按照相关程序给予办理。

特此公示

附图



     联系电话:0660—5663655


陆河县自然资源局
2023118